天气预报:

西青区气象台07时发布:今天白天晴间多云,北风转西南风2~3级,最高气温4℃;今天夜间晴间多云,西南风到西风1~2级,最低气温-5℃。

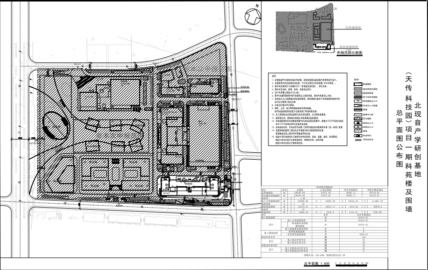
关于公布北现音产学研创基地(天传科技园)项目一期科苑楼及围墙建设工程设计方案总平面图的通知

发布日期:2025-12-10 来源:天津市规划和自然资源局西青分局
字号


北现音产学研创基地(天传科技园)项目一期科苑楼及围墙建设工程规划方案总平面图已审批,审批时间为2025129日,证书编号为2025西青建证0075。按照《中华人民共和国城乡规划法》、《天津市城乡规划条例》的要求,现将上述工程总平面图予以公布。

通讯地址:天津市西青区柳口路8

联系电话:022-27395979

邮政编码:300380


天津市规划和自然资源局西青分局

20251210

扫一扫在手机打开当前页

主办单位: 天津市西青区人民政府 版权所有  备案单位: 天津市西青区人民政府办公室

网站标识码:1201110001 津ICP备12005437号-1  津公网安备 12011102000289号

地址: 天津市西青区杨柳青府前街2号  邮编: 300380 联系我们

违法和不良信息举报电话:27392579  邮箱: xiqingxxgk@126.com

wzalogo_06.png

主办单位: 天津市西青区人民政府 版权所有

备案单位: 天津市西青区人民政府办公室

网站标识码:1201110001 津ICP备12005437号-1

津公网安备 12011102000289号

地址: 天津市西青区杨柳青府前街2号

邮编: 300380 联系我们

违法和不良信息举报电话:27392579

邮箱: xiqingxxgk@126.com

wzalogo_06.png